分譲物件検索
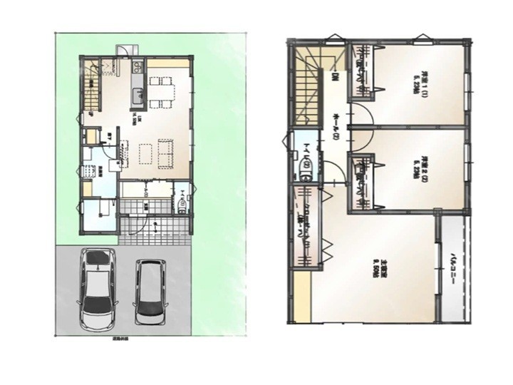
![]()
【心地よく暮らす住まいをご提案】
周辺には商業施設立地☆
教育施設も近く、子育て世代にも嬉しいエリア☆
利便性も良く、市街地へのアクセスも良好☆
月々のお支払い費用例
33,962
~44,720
円
価格 1,408 ~ 1,854 万円
家賃並みのお支払い費用で、新築一戸建てのマイホーム。いま、お住いの家賃と比較してください。
※上記は金利 0.75%で40年払いで計算してます。
周辺環境
好立地の分譲地 毎日の暮らしに便利!快適な周辺環境
-
マルナカ高屋店まで徒歩18~19分
1410~1460m
-
ローソン岡山高屋店まで徒歩13~14分
981~1031m
-
岡山市立幡多幼稚園まで徒歩6~7分
478~528m
-
岡山市立幡多小学校まで徒歩10~11分
772~822m
-
岡山市立竜操中学校まで徒歩13~14分
991~1041m
-
トマト銀行竜操支店まで徒歩3~4分
205~255m
物件概要
| 所在地 | 岡山市中区高屋 | ||
|---|---|---|---|
| 価格 | 1,408 ~ 1,854 万円 | ||
| 交通 |
山陽本線「高島駅」まで徒歩20分 宇野バス「高屋東バス停」まで徒歩6分 |
||
| 校区 | 幡多小学校/竜操中学校 | ||
| 道路 | 約6m | ||
| 総区画数 | 全6区画 | 販売区画数 | 5区画 |
| 土地面積 | 149.11m²(約45.10坪)~198.29m²(約59.98坪) | ||
| 土地の権利形態 | 所有権 | 地目 | 雑種地 |
| 都市計画 | 市街化区域 | 用途地域 | 第1種中高層住居専用地域 |
| 建ぺい率 | 60% | 容積率 | 200% |
| 上水道 | 公営水道 | 下水道 | 公共下水 |
| 電気 | 中国電力 | ガス | |
| 取引態様 | 仲介 | 建築確認番号 | |
| その他特記事項 |
※上下水道負担金55万円(税込)本体代金に含まれる。 ※面積確定前につき実測清算あり ※位置指定日(令和7年1月6日) ※この土地は、土地媒介契約3カ月以内に株式会社ヘルシーホームと建築請負契約を締結して頂く事を条件として販売します。この期間内に住宅の建築請負契約が成立しなかった場合は、土地売買契約は白紙となり、受領した金額は無利息にて全額お返し致します(契約印紙代を除く) なお、提案図面等は土地の購入者の参考に資するための一例であって、当該提案図を採用するか否かはお客様の自由です。 |
||
| 完成時期 | |||
| 見学可能期間 | 取引条件有効期限 | 2026年4月12日 | |
| 情報更新日 | 2026年3月12日 | 次回の更新予定日 | 2026年3月26日 |
| 広告主 | 株式会社 ヘルシーホーム | 住所 | 岡山県岡山市南区富浜町5番10号 |
| 電話番号 | 0120-62-7560 | 免許証番号 | 国土交通大臣(1)第10157号 |
| 所属団体等 |
一般社団法人 日本木造住宅産業協会 岡山県 建築士会 公益社団法人 全国宅地建物取引業保証協会 公益社団法人 岡山県宅地建物取引業協会 公益社団法人 広島県宅地建物取引業協会 |
||
アクセスマップ
こちらもオススメ!
-
幡多小学校/竜操中学校
岡山市中区藤原西町一丁目